Quick / More Drawing  Display Screen.......

Drawing Details

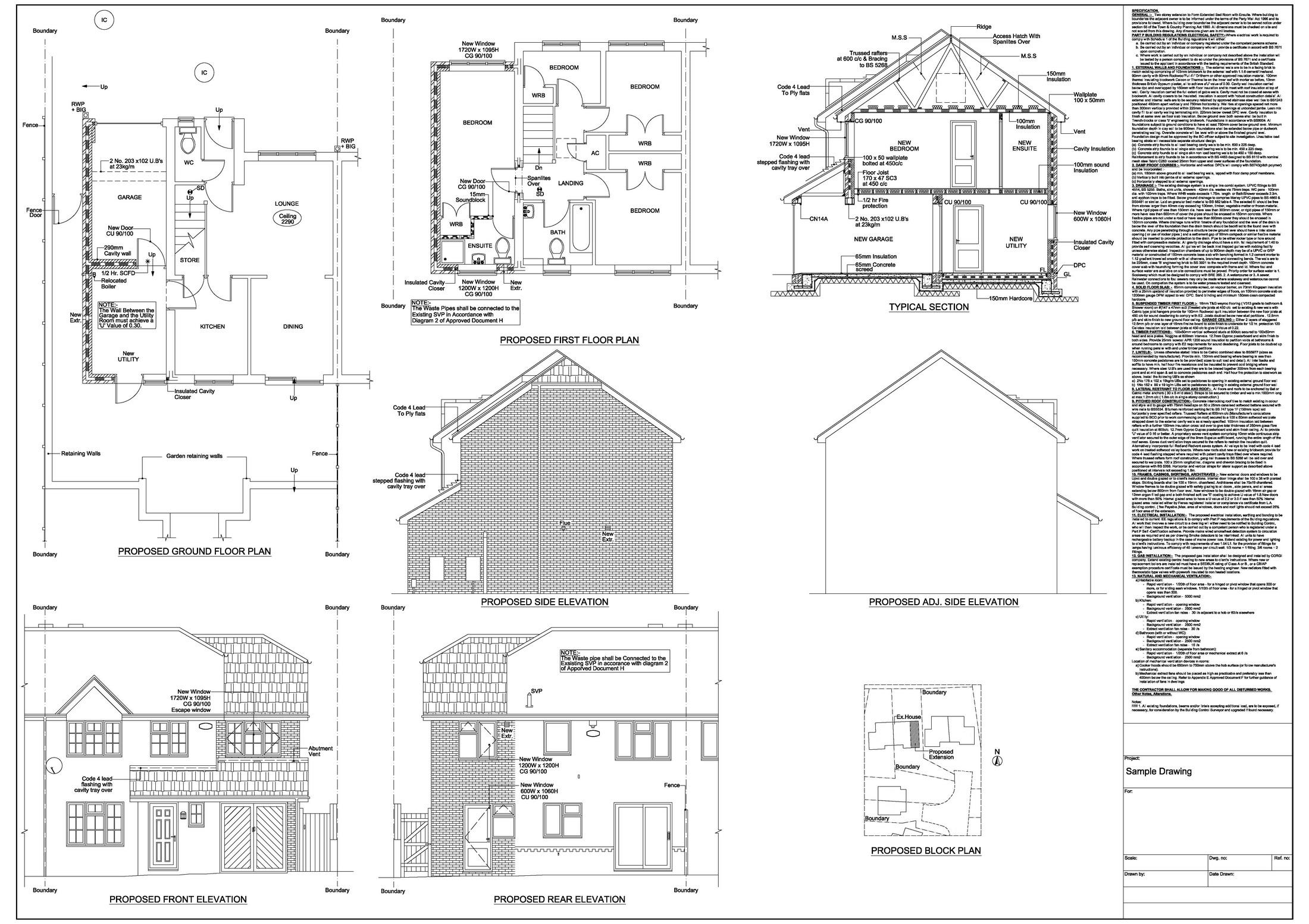
Drawing name :

Two Storey Extension 1

Extension Type :

Two Storey Extension 1
Street Name :  UK
Before Extension : After Extension :


Click the below links to view the drawings :

Twostbefextone.jpg

TwostAftextone.jpg